Проектирование и строительство современных офисных пространств в Рязани
Проектирование офисных пространств сегодня претерпевает значительные изменения. Современные требования бизнеса диктуют необходимость создавать гибкие и функциональные офисы, которые могут быстро адаптироваться под различные виды деятельности и численность сотрудников. Важную роль здесь играет концепция свободной планировки, которая позволяет максимально эффективно использовать площадь. Компании ищут решения, способные обеспечить комфорт, экономию ресурсов и повышение продуктивности команды одновременно.
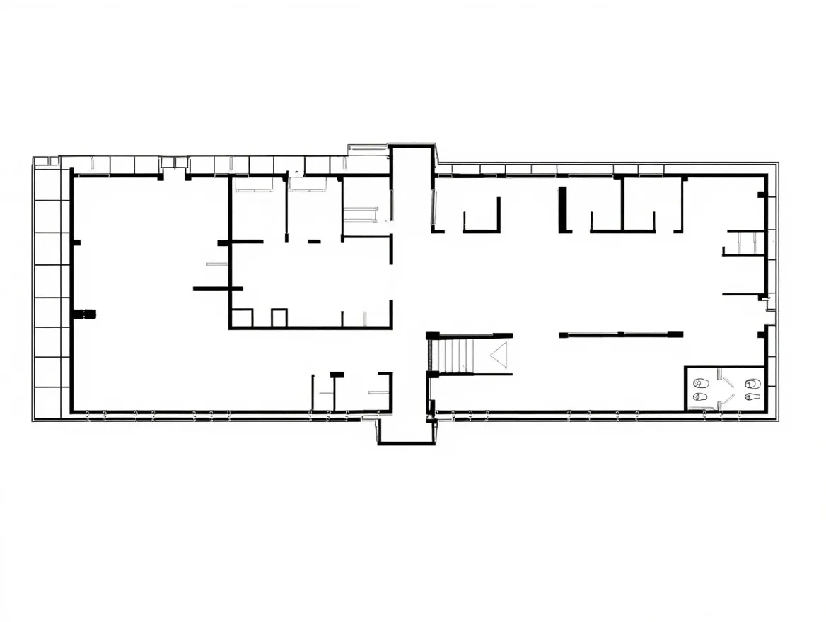
Основные характеристики офисного проекта 500 м² в Рязани
Проект двухэтажного офиса площадью 500 м² предлагает широкий спектр возможностей для воплощения разнообразных архитектурных и дизайнерских решений. Главной отличительной чертой является его свободная планировка, позволяющая владельцам адаптировать пространство в соответствии с потребностями компании. Общие характеристики такого проекта включают:
- Два этажа рабочей площади, что обеспечивает возможность разделения функциональных зон.
- Использование многофункциональных зон для проведения встреч и командной работы.
- Гибкость в распределении пространства для как групповой, так и индивидуальной работы.
Особенности использования материалов в строительстве офисов в Рязани
Выбор материалов для строительства офисного здания существенно влияет на его внешний вид, функциональность и долговечность. Современные проекты часто реализуются с применением быстровозводимых конструкций, что обеспечивает сокращение сроков строительства и оптимизацию затрат. Популярными материалами становятся металлоконструкции и сэндвич-панели, которые предлагают ряд преимуществ:
- Скорость строительства: использование готовых блоков позволяет сократить время реализации проекта.
- Экономичность: снижение затрат благодаря оптимизации процессов монтажа и меньшему объему используемых ресурсов.
- Энергосбережение: применение сэндвич-панелей способствует поддержанию комфортного температурного режима в помещении.
Архитектурные решения и планировка для оптимизации рабочего пространства в Рязани
Эффективная организация рабочего пространства в двухэтажном офисе — залог успешной работы компании. Применение нестандартных архитектурных решений помогает не только улучшить эстетику здания, но и повысить его функциональность. Среди возможных решений выделяются:
- Размещение офисной мебели для создания комфортных рабочих мест.
- Создание зон тишины и уединения для индивидуальной работы.
- Многоуровневые зоны для отдыха, совещаний и общего общения.
Нюансы проектов под ключ и их стоимость в Рязани
Проекты офисов под ключ пользуются повышенным спросом, поскольку они позволяют заказчику не только минимизировать временные и трудовые затраты, но и получить профессионально выполненное решение. Включение в проект всех этапов от разработки концепции до сдачи готового здания в эксплуатацию делает такой подход привлекательным. Стоимость реализации проекта варьируется в зависимости от ряда факторов:
- Сложность архитектурных решений и применяемых технологий.
- Выбор материалов и их объем.
- Сроки и условия проведения строительных работ.
Металлоконструкции и их роль в офисных зданиях в Рязани
Металлоконструкции занимают ключевое место при строительстве современных офисных зданий, обеспечивая не только прочность и долговечность постройки, но и её гибкость в архитектурных решениях. Их использование позволяет создавать уникальные формы и обеспечивает легкость адаптации конструкций под нужды заказчика. К преимуществам металлоконструкций в офисном строительстве можно отнести:
- Высокая устойчивость к внешним воздействиям и механическим нагрузкам.
- Экологичность и возможность повторного использования в случае реконструкции.
- Соединение с другими строительными технологиями, такими как сэндвич-панели, для создания энергоэффективных решений.
